双梁防爆起重机产品介绍:
QB型防爆桥式起重机适用于工厂内引爆能力不高于IIB或IIC级,引燃温度组别为T1-T4组的可燃性气体或蒸汽与空气形成的爆炸性气体混合物的场所,适用的危险区域为1区或2区。
用户在选用QB型防爆桥式起重机时应注明工作制度,工作环境的*高、*低气温及电源种类等技术要求,还可根据用户要求的跨度设计制造。
QB型防爆桥式起重机产品常规操作为地面操作,也可根据用户需要进行司机室操作,工作级别为A4中级。
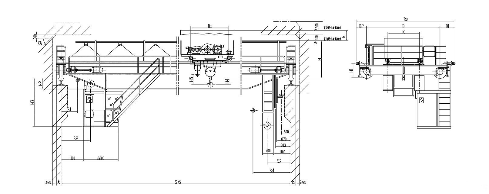
双梁防爆起重机结构简图:

秉持“专一、专注”的精神,提供匠心产品,服务全球千万用户
实力雄厚 · 设备优良 · 质量保证 · 用户至上 · 合作共赢
13503731911
扫一扫 关注我们